友情提醒:
11层7754平方-某市赵村安置房项目7#周转房公寓
| 层数: | 11层 | 地上: | 10层 | 地下: | 1层 | 发布时间: | 2025-05-12 |
| 建筑类型: | 住宅楼 | 结构类型: | 框架结构 | 基础类型: | 桩基础筏板基础 | 难易程度: | 适中 |
| 建筑面积: | 7754平 | 水电 | 否 | 地下室: | 是 | 出图年份: | 2019.10年 |
| 编号: | S11-7754 | ||||||
| 备注: | |||||||
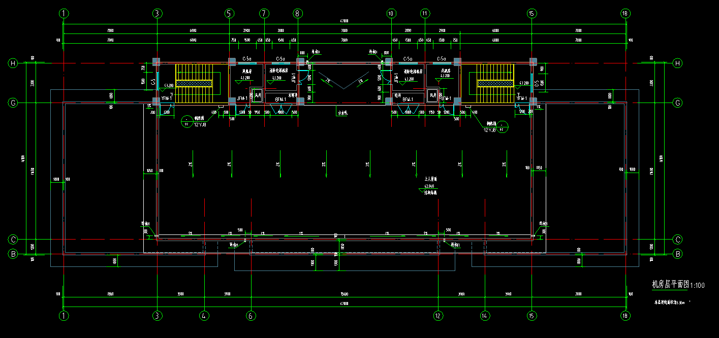
| 以下为仅为建施与基础的部分截图,点击可放大 如需细看或看水电暖安装可联系客服可详看dwg文件 |
|
|






