友情提醒:
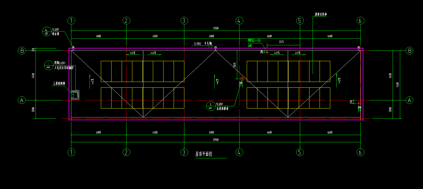
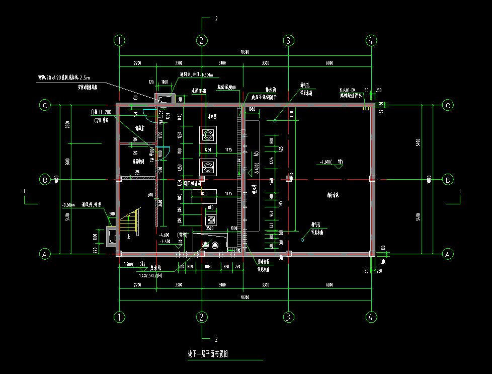
3层505平-某公司生产线办公楼
| 层数: | 3层 | 地上: | 2层 | 地下: | 1层 | 发布时间: | 2024-08-21 |
| 建筑类型: | 办公楼-综合楼 | 结构类型: | 剪力墙结构 | 基础类型: | 独立基础筏板基础 | 难易程度: | 简单 |
| 建筑面积: | 505平 | 水电 | 是 | 地下室: | 是 | 出图年份: | 年 |
| 编号: | B3-505 | ||||||
| 备注: | |||||||
| 以下为仅为建施与基础的部分截图,点击可放大 如需细看或看水电暖安装可联系客服可详看dwg文件 |
|
|





